お知らせ
2025/10/27 (月)
11月22日付け 工事は無事終了しましたが設備の申請や各種点検を経て、再稼働となります。
設置済みではございますが、現時点ではご利用できませんのでご注意ください。
※12月上旬頃の稼働予定(前後あり)
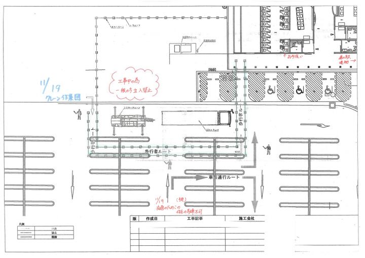
※【11月10日付 工事期間の修正があり下記を修正しました。
①11月10日・11日頃一部駐車場の制限が・・
→11月19日頃一部駐車場の制限が・・
②クレーン車などの機械の搬入があり11月10日・11日頃・・
→クレーン車などの機械の搬入があり11月19日頃・・
*上記の変更に伴い、添付の図も変更いたしました。
申し訳ございません。お詫び申し上げます。
尚工事の進み具合により日付などが又変更になる場合がありますが、ご了承くださいませ。
2025年11月19日よりEV(急速充電器)の工事を開始する事になりました。
期間は約10日間を見込んでします。(前後有)
クレーン車などの機械の搬入があり、
19日頃(予定)、EV付近では一般車の駐車場の使用制限がかかりますので、
あらかじめご了承ください。
期間内の工事中は、一部区間警備員が配置されますが、敷地内走行については
警備員の指示に従いつつ、歩行者に注意して駐車場を使用いただきますようお願い申し上げます。
尚、設置後申請や正しく使用できるか等を行ってから
EVの再稼働となります(大体12月上旬頃)
※工事に際し、車の留め置きがある場合スムーズに設置できない場合があります。
当社の来店・使用に関係のない長時間の車の留め置きはご遠慮願います。
